Architekturbüro

Ignaz-Perner-Straße

231023_Ignaz_01.jpg
Ignaz-Perner-Straße_3 Büros_230425.jpg
Ignaz-Perner-Straße_04a_230516.jpg
Ignaz-Perner-Straße_Stadtmodell_231024.jpg
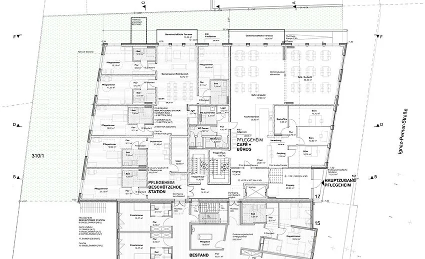
 Ignaz-Perner-Straße 17 Ebersberg  Das bestehende Pflegeheim in der Ebersberger Ignaz-Perner-Straße soll erweitert werden. Dazu wird die auf dem Baugrundstück befindliche Lagerhalle rückgebaut.  Der Bebauungsplan wird geändert, um die Pflegeheimnutzu

Ignaz-Perner-Straße 17 Ebersberg

Das bestehende Pflegeheim in der Ebersberger Ignaz-Perner-Straße soll erweitert werden.
Dazu wird die auf dem Baugrundstück befindliche Lagerhalle rückgebaut.

Der Bebauungsplan wird geändert, um die Pflegeheimnutzung zu zulassen und das geplante Gebäudevolumen umzusetzen. Insgesamt werden ca. 2400m² Wohn-und Nutzfläche entstehen.

Der Neubau schließt direkt an das vorhandene Pflegeheim an und wird auf allen Geschossen schwellenlos verbunden und zu gemeinschaftlichen Stationen vereint.
Das neue Gebäude wird Erdgeschoß und 4 Obergeschosse erhalten, wobei das 3. Obergeschoss auf 3 Seiten zurückspringt und eine Verbindung zum Bestand schafft. Das 4. Obergeschoß springt allseitig zurück.

Im Erdgeschoss wird es straßenseitig einen halböffentlichen Bereich mit einem Gemeinschaftsbereich für Heimbewohner und ihre Gäste, z.B. für Feiern, Veranstaltungen und Gottesdienste geben.
Des Weiteren soll im Erdgeschoss eine sogenannte beschützende Station untergebracht werden, in der überwiegend Demenzkranke wohnen werden. Dieser Personenkreis besitzt oft einen hohen Bewegungsdrang, daher wird die Möglichkeit des Ausganges in den Garten angeboten, gleichzeitig müssen diese Bewohner aber dauerhaft beaufsichtigt und überwacht werden.

Im 1. und 2. Obergeschoss werden neue Pflegezimmer angeordnet.

Im 3.Oberschoss werden Flächen für die sozialpsychiatrischen Dienste in Form von kleinen Apartments für psychisch kranke Personen, sowie erforderliche Mitarbeiterbüros für die Betreuung dieses Personenkreises errichtet.

Im 4. Obergeschoss werden kleine Mitarbeiterapartments geschaffen.

Im Untergeschoss wird die bestehende Tiefgarage erweitert, sowie Mitarbeiterumkleiden, Therapieräume und Lagerflächen angeordnet.

 Bauherr: privat  Planung: seit 2023  Wohn- und Nutzfläche: ca. 2.400 m²  Bauwerkskosten: ca. 8.000.000.- €  Leistungsphasen: 1-9

Bauherr: privat

Planung: seit 2023

Wohn- und Nutzfläche: ca. 2.400 m²

Bauwerkskosten: ca. 8.000.000.- €

Leistungsphasen: 1-9