Architekturbüro

Hofbebauung Berg-am-Laim

bgl_01.jpg
bgl_02.jpg
 Im Zuge einer städtebaulichen Verdichtung in Berg am Laim in München wurden bzw. werden vier Baulücken geschlossen und in einem Innenhof großzügige, familiengerechte Wohnungen erstellt. Die kleeblattartige Gebäudeanordnung nimmt Rücksicht auf den vo

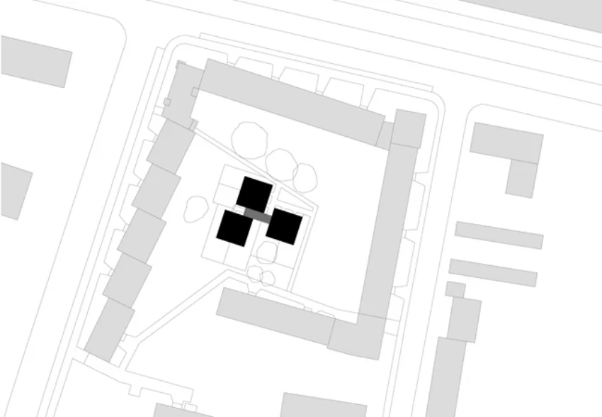
Im Zuge einer städtebaulichen Verdichtung in Berg am Laim in München wurden bzw. werden vier Baulücken geschlossen und in einem Innenhof großzügige, familiengerechte Wohnungen erstellt.
Die kleeblattartige Gebäudeanordnung nimmt Rücksicht auf den vorhandenen Baumbestand, der erhalten werden sollte, und fügt die neuen Gebäude selbstverständlich in den früher unbebauten Innenhof ein. Insgesamt entstehen 9 neue Wohneinheiten. Die Maisonettewohnungen im Erdgeschoss verfügen alle über einen eigenen Gartenanteil. Die großzügigen Wohnungen in den Obergeschossen werden über einen zweigeschoßigen Allraum erschlossen. Die Wohnungen werden von allen vier Himmelsrichtungen belichtet. Dachterrassen im obersten Geschoss erweitern das Raumangebot.

  Bauherr : Heimbau Bayern   Fertigstellung : Oktober 2002   Wohn-/Nutzfläche : ca. 3 500 m²   Bauwerkskosten : ca. 4.375.000.- €   Leistungsphasen : LPH 1-5, 9  

Bauherr:
Heimbau Bayern

Fertigstellung:
Oktober 2002

Wohn-/Nutzfläche:
ca. 3 500 m²

Bauwerkskosten:
ca. 4.375.000.- €

Leistungsphasen:
LPH 1-5, 9